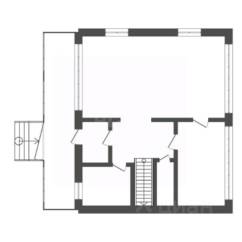
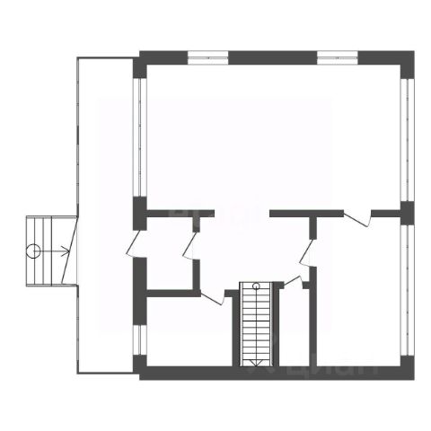
Покупай сейчас - плати потом! На данный объект доступна рассрочка на выгодных условиях Подходит под рассрочку на вторичную недвижимость Продается 2-х этажный кирпичный дом, площадью 215 м.кв в деревне Малёвка. Ключевым преимуществом является свободная планировка, предоставляющая возможность для индивидуальной планировки внутреннего пространства и проведения чистовой отделки в полном соответствии с личными предпочтениями и потребностями будущего владельца. Дом возведен из качественных материалов, что обеспечивает его долговечность и надежность. Высота потолков 3 метра создает ощущение простора и светлого пространства, которое усиливается за счет больших энергоэффективных окон. Современная остекление не только наполняет комнаты естественным светом, но и способствует сохранению тепла, снижая будущие расходы на отопление. Асфальтированная дорога подходит непосредственно к участку, что обеспечивает комфортный подъезд в любое время года. Участок отмежеван и огорожен забором. Инфраструктура развита: в шаговой доступности расположены остановка общественного транспорта, кафе, школа, детский сад и магазины. На автомобиле дорога до центра Тулы занимает примерно 10 минут, что оптимально сочетает преимущества загородной жизни с близостью к городским возможностям. Подходит под ЛЬГОТНУЮ ИПОТЕКУ. Звоните и мы договоримся о просмотре. Код пользователя: 140480 Номер в базе: 9681216 Дом в деревне Малевка Тульской области.




































































