75 806 ₽/м²
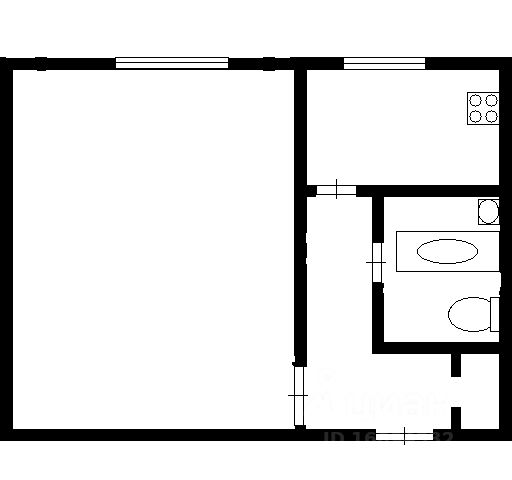
Продается уютная однокомнатная квартира. Данная квартира приобретена нами с использованием ипотечных средств, в связи с этим есть обременение! НО закрывать нашу ипотеку не надо, это никак не мешает Вам приобрести нашу квартиру, сделка будет произведена максимально безопасно для покупателя! Материнский капитал не использовали, два взрослых собственника , никто не прописан, полная стоимость в договоре купли-продаже. Звоните расскажу все подробно! Приходите на просмотр, квартира в отличном состоянии и полностью готова для комфортного проживания, единственное, что останется сделать-это отремонтировать балкон по Вашему вкусу, но на это мы сделали хорошую скидку. Квартира располагается в самом центре Ясногорска площадью 31 квадратный метр на пятом этаже пятиэтажного кирпичного дома, расположенного по адресу: город Ясногорск, Советская улица, дом 2. Жилая площадь составляет комфортные 18 квадратных метров, а кухня занимает 6.5 квадратных метров, предоставляя достаточно места для кулинарного творчества и семейных ужинов. Из окон открывается приятный вид на улицу, позволяя наслаждаться городской атмосферой без лишнего шума. В квартире также ест балкон, но он требует косметического ремонта. В вашем распоряжении аккуратная и функциональная планировка с совмещённым санузлом, что является удобным решением для экономии пространства. В квартире недавно проведён косметический ремонт, жильё выглядит свежо и аккуратно, а благодаря тому, что мебель частично остается новому владельцу - она готова к новоселью без дополнительных вложений. Для маленьких жителей двора оборудована детская площадка место, где дети смогут весело проводить время под присмотром родителей. Для взрослых и всей семьи рядом расположены школа, детский сад и торговые ряды, рынок, магазины "Пятерочка", "Магнит", "Верный", детская поликлиника, центральная площадь города, Автостанция и Автовокзал, что обеспечит комфортное проживание и экономию времени на поездки за необходимыми товарами и услугами. Приглашаем вас оценить все преимущества данной квартиры лично, это может стать вашим новым любимым домом!















































































