


От года, комм. платежи включены (без счётчиков), комиссия 70%, залог 10 000 ₽
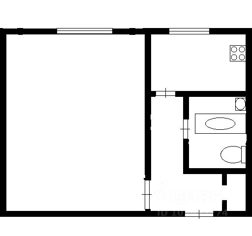
Сдается уютная однокомнатная квартира в Новомосковске по адресу: улица Пашанина, 6А. Общая площадь квартиры составляет 32,3 кв. м, расположена на 2 этаже 5-этажного кирпичного дома, построенного в 1962 году. Идеальный вариант для одного человека или пары, кто ищет комфортное жилье по доступной цене. Квартира с косметическим ремонтом, светлая и приятная атмосфера. В комнате и на кухне есть вся необходимая мебель, чтобы вы могли сразу заехать и начать жить. Из техники в вашем распоряжении холодильник, телевизор и стиральная машина. Санузел совмещенный, есть ванна для расслабления после долгого дня. Окна выходят на улицу, а на балконе можно наслаждаться свежим воздухом. Дом находится в хорошем состоянии, рядом предусмотрена наземная парковка для вашего удобства. В пешей доступности от дома находятся школы, детские сады, клиники и магазины, что делает это место особенно удобным для проживания. Квартира готова принять новых арендаторов, без домашних животных. Возможность оформления договора аренды предоставляется. Приглашаем вас на просмотр, чтобы лично убедиться в преимуществах этой квартиры. Записывайтесь на удобное для вас время, мы будем рады ответить на все ваши вопросы и помочь с заселением!






























































































