Мы используем куки-файлы. Соглашение об использовании
Общая площадь97 м²
Участок25 сот.
Материал домаПенобетонный блок
Этажей в доме1
Год постройки2025
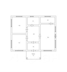
Дом гостевой 97 кв.м. участок 25 соток под строительство коттеджа, электричество, водопровод, септик, имеется договор на газ по государственной программе. Возможность купить с участком 12 или 36 соток. Блочный дом, фундамент бетонная монолитная лента, глубиной 1.5 метра., дополнительно цокольная лента 70 см. высотой. Все стены несущее из блока 300 мм, D-500, полностью на фундаменте. Полы, независимая бетонная плита по грунту. Дом без отделки, что-бы можно было выбрать интерьер под себя и что-бы было видно его состояние. Дом отстоял две зимы в данном виде. Планировка на фото, предусмотрен вариант для третьей отдельной комнаты. Фиксировали каждый этап строительства. Приятное расположение участка, в тихом и уютном месте, рядом со старой деревней. В 300 метрах от трёх прудов и леса. Деревня примыкает к районному центру Заокский, электричка в 3 км. Ж/Д станция Тарусская. В радиусе пяти километров расположена вся необходимая инфраструктура. Хорошее сочетание для жилого дома или как дома для отдыха.
Позвоните автору
Вам ответят на все вопросы

О доме

Площадь

97 м²

Материал дома

Пенобетонный блок

Состояние дома

Нужен ремонт

Количество этажей

1

Количество спален

2

Год постройки

2025

Об участке

Площадь

25 сот.

Категория земель

Земли населённых пунктов

Статус участка

Личное подсобное хозяйство

Коммуникации и удобства

Санузел

1 в доме

Канализация

Септик

Водоснабжение

Колодец

Электричество

Есть

Газ

Нет

Спросите умного помощника
Получите экспертное мнение о жилье

Расположение

Подпишитесь на объявления в этой локации
Мы сообщим, как только поблизости появится что‑нибудь новенькое

Рекомендуем коттеджные посёлки

Охрана, зоны отдыха и удобная инфраструктура
Ипотечный калькулятор
  • Базовая
  • Семейная
  • ИТ-ипотека
  • 20%
  • 30%
  • 40%
  • 50%
лет
  • 10 лет
  • 20 лет
  • 30 лет
Загружаем предложения от застройщика и банков
Автор объявленияВалерий Гонтарь
  • Документы проверены
  • 12 лет 10 месяцев на Циане
  • 3 объявления
  • Хотите продать недвижимость?Разместите объявление на ЦианРазместить
    8 500 000 ₽
    Цена за метр
    87 629 ₽/м²
    Условия сделки
    свободная продажа
    Ипотека
    возможна
    Автор объявленияВалерий Гонтарь
    Документы проверены