Мы используем куки-файлы. Соглашение об использовании
Только на Циан

Продается комната, 271,9/11.5 м²

Площадь кухни14 м²
Площадь комнат11,5 м²
Этаж1 из 9
Год постройки1978
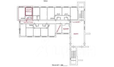
ПРОДАМ комнату с мебелью и техникой! Удачное местоположение дома. Без пересадок в любой район города на общественном транспорте. Автобусная, трамвайные обстановки рядом с домом. Рядом большой торговый центр (магазины: Перекресток, Чижик, М-Видео), аптеки и др., Машколледж, школа и детский сад - всё в шаговой доступности. Комната расположена на ВЫСОКОМ 1-м этаже. Секция НА 2 КОМНАТЫ, с своим туалетом и душевой, в квартире на 12 комнат. Комната в конце коридора (мимо никто не ходит). В 2-й комнате живет семья (приличные, доброжелательные люди). Общая кухня в квартире в ухоженном состоянии, очень уютная. Маргинальные личности - отсутствуют. Все соседи в хороших отношения с друг другом. Поэтажный план смотрите в загруженных фото! Юридически чистая сделка. 1 взрослый собственник. Никто не зарегистрирован. Задолженностей нет как по коммунальным платежам, так и у самого собственника. Уведомления о преимущественном праве покупки - в процессе подготовки к сделке. ЗВОНИТЕ! С удовольствие отвечу на все возникшие у вас вопросы!
Позвоните автору
Вам ответят на все вопросы

О квартире

Тип жилья

Вторичка

Общая площадь

271,9 м²

Жилая площадь

175,3 м²

Площадь кухни

14 м²

Площадь комнат

11,5 м²

Комнат в квартире

6

Комнат в продажу

1

Санузел

1 раздельный

Вид из окон

Во двор

Ремонт

Косметический

Перепланировка

Не было

О доме

Год постройки

1978

Строительная серия

Индивидуальный проект

Количество лифтов

1 пассажирский

Тип дома

Кирпичный

Тип перекрытий

Железобетонные

Подъезды

1

О подъезде

Есть мусоропровод

Парковка

Наземная

Отопление

Центральное

Аварийность

Нет

Газоснабжение

Центральное

Юридические особенности

Несовершеннолетние собственники

Нет

Материнский капитал при покупке

Не использовался

Расположение

Ипотечный калькулятор
  • Базовая
  • Семейная
  • ИТ-ипотека
  • 20%
  • 30%
  • 40%
  • 50%
лет
  • 10 лет
  • 20 лет
  • 30 лет
Загружаем предложения от застройщика и банков
Помощь риелтора
Проверенный риелтор поможет купить или продать квартиру
  • Документы проверены
  • 10 лет 8 месяцев на Циане
  • 2 объявления
  • 940 000 ₽
    Цена за метр
    81 739 ₽/м²
    Условия сделки
    свободная продажа
    РиелторНаталья Минаева
    Документы проверены