Мы используем куки-файлы. Соглашение об использовании
Только на Циан

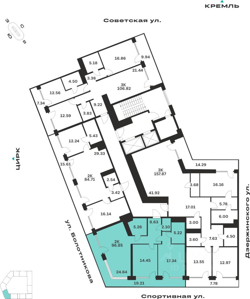
Продается 2-комн. квартира, 96,85 м²

Общая площадь96,85 м²
Жилая площадь31,8 м²
Этаж10 из 10
Год сдачи2031
ДомНе сдан
ОтделкаПредчистовая
"Прайм Советская" - дом элит-класса на главной улице города. Каскадный дом от 3 до 10 этажей с фасадом из натурального камня, который идеально вписывается в архитектурный код всего города и качественно преображает его центр. В проекте используются новейшие технологичные решения, делающие каждый день жизни в нем легким и комфортным. Двор-парк с детальным вниманием к озеленению и арт-объектом в центре станет местом притяжения резидентов любого возраста. Коммерческие помещения целевого предназначения сделают жизнь туляков еще ярче и разнообразнее. Широкая линейка планировочных решений и 146 эксклюзивных форматов квартир подчеркивают исключительность резидентов и подойдут для любого образа жизни.

О квартире

Тип жилья

Новостройка

Общая площадь

96,85 м²

Жилая площадь

31,8 м²

Высота потолков

2,98 м

Отделка

Предчистовая

О доме

Количество лифтов

8 пассажирских, 10 грузовых

Понравилась квартира — узнайте о ней больше

Застройщик ответит на все вопросы

Отделка квартиры

Предчистовая — остаётся установить сантехнику, розетки, двери и навести красоту: поклеить обои и уложить на пол покрытие

Отделка в ЖК

  • Предчистовая
  • Без отделки

О ЖК «ПРАЙМ СОВЕТСКАЯ»

  • Сдача комплекса
    Сдача в 4 кв. 2031
  • Застройщик
    ГК ОСТ
  • Класс
    Премиум
  • Тип дома
    Монолитно-кирпичный
  • Парковка
    Подземная
  • Отделка
    Без отделки, предчистовая
  • Тип комплекса
    Жилой комплекс
Похоже на то, что вы ищете?

Особенности жилого комплекса

  • Парковка

  • Внутренний двор

  • Архитектура

  • Входная группа

Подробнее о жилом комплексе

Акции в ЖК «ПРАЙМ СОВЕТСКАЯ»

Узнайте про персональные условия и дополнительные скидки при покупке квартиры у застройщика
Ипотечный калькулятор
  • Базовая
  • Семейная
  • ИТ-ипотека
  • 20%
  • 30%
  • 40%
  • 50%
лет
  • 10 лет
  • 20 лет
  • 30 лет
Загружаем предложения от застройщика и банков

Расположение

Корпус проверен наш.дом.рф
Обновлено 13 мая 2026
  • Нет в реестре проблемных объектов
  • Застройщик не банкрот
  • Есть эскроу счёт
  • Актуальные фото стройки

Ещё квартиры в жилом комплексе

238 квартир в продаже · Сдача в 4 кв. 2031
Автор объявления

Застройщик «ГК ОСТ»

Надежный застройщик
ГК «ОСТ» — экосистема продуктов и услуг, ядро которой — технологичный и мультиформатный девелопер. № 1 в рейтинге ДОМ. РФ и ЕРЗ. РФ по объемам текущего строительства в Тульской области. Одновременно в Туле реализуется строительство 49 многоквартирных жи...
22 081 800 ₽
Цена за метр
228 000 ₽/м²
Условия сделки
свободная продажа