Мы используем куки-файлы. Соглашение об использовании
Общая площадь31 м²
Жилая площадь20 м²
Площадь кухни6 м²
Этаж1 из 5
Год постройки1963
Код объекта: 2078590. Сдается 1-к квартира в самом центре Тулы, расположенная в спокойном районе по адресу: ул. Льва Толстого, дом 91. 1/5 этаж кирпичного дома, общая площадь 31 м2. Чистый подъезд, хорошие соседи. Из окна открывается живописный вид в озеленений двор. Придомовая территория с оборудованной детской и спортивной площадкой. Есть большое количество парковочных мест. РЕМОНТ: - полностью готова к заселению, - надежная электропроводка, - санузел совмещен, - установлены счетчики горячей и холодной воды, - в ванной плитка, - поклеены обои, - пластиковые стеклопакеты, - железная входная дверь и надежные замки, - в квартире всегда комфортная температура, - имеется (вся необходимая) мебель: кухонный гарнитур, холодильник, газовая плита, диван, кровать, шкаф, стол, стиральная машина, прихожая. ШАГОВАЯ ДОСТУПНОСТЬ: - рядом остановка транспорта, - удобная транспортная развязка, - магазины, - салон красоты, - парк, - пруд, - ресторан и кафе, - банк, - стоматология, - поликлиника. У собственника могут быть дополнительные пожелания к арендаторам. Их лучше обсудить заранее: в чате или по телефону. Звоните ПРЯМО СЕЙЧАС, пока ВАШУ будущую квартиру не снял кто-то другой.
Позвоните автору
Вам ответят на все вопросы

О квартире

Общая площадь

31 м²

Жилая площадь

20 м²

Площадь кухни

6 м²

Высота потолков

2,7 м

Санузел

1 совмещенный

Вид из окон

На улицу и двор

Спальных мест

1

Ремонт

Косметический

О доме

Год постройки

1963

Строительная серия

1-447

Тип дома

Кирпичный

Тип перекрытий

Железобетонные

Подъезды

4

Парковка

Наземная

Отопление

Центральное

Аварийность

Нет

Газоснабжение

Центральное

В квартире есть

Холодильник
Стиральная машина
Интернет
Ванна
Мебель на кухне
Мебель в комнатах
Спросите умного помощника
Получите экспертное мнение о жилье
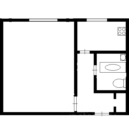
Планировка этой квартирыПо данным Циан
Планировка этой квартиры по данным Циан

Расположение

Зимой будет тепло
Дома такой же серии обычно хорошо сохраняют тепло
7
Платёж такой же, а квартира — вашаНовые квартиры с отделкой под ваш бюджет
25 000 ₽/мес.
Оплата ЖКХ
3 000 ₽ (без счётчиков)
Залог
10 000 ₽
Комиссия
50%
Предоплаты
нет
Срок аренды
от года
Условия проживания
можно с детьми
Агентство недвижимости
Документы проверены
На Циан
1 год
Объектов в работе
65